Hausboot-Zeichnungen
| I m p r e s s u m | B i l d e r g a l e r i e | Z e i c h n u n g e n | T e c h n i k |
| G ä s t e b u c h | W&L auf dem Wasser | F A Q | L i n k s |
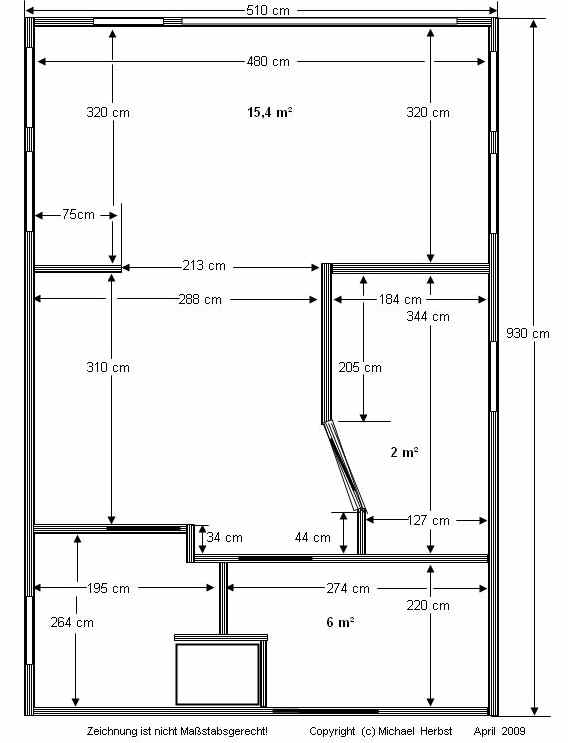
Dieses Hausboot habe ich selbst berechnet und gezeichnet und irgend wie nie damit fertig. Mit dem Bau soll ca. 2012 begonnen werden. Denn solange wird unsere Weltumseglung wohl noch dauern.

Gezeichnet habe ich diese Zeichnungen mit einem Hausplaner den es für 10,- Euro zu kaufen gab. Also ein ganz einfaches Programm, nur um zu sehen wie der Platz maßstabsgerecht aussieht.

Dabei kann man sich gut vorstellen wie man später einmal zu wohnen hat, ob der Platz ausreichend ist. Aber das Beste ist, man geht zu einem Strand und Zeichnet den Grundriss im Sand auf. Hierbei sieht man dann genau wie groß das Hausboot werden wird.


42 m² der Innenraum vom Haus.

Hier habe ich vom Hausboot ein Modell aus Seekartenpapier gebaut. Dabei kann man gut die Räumlichkeiten sehen. Mit den Gedanken kann man dann durch das Haus gehen.


Diese Zeichnungen habe ist mit Excel gezeichnet, leider sind die detaillierten Zeichnungen in ihrer Qualität nicht gut zu erkennen. Somit konnte ich sie leider nicht veröffentlichen.

Angetrieben werden soll das Hausboot über 2 Außenbordmotoren von ca. a`60 PS. Auf den Gambier Inseln hatte ich ein Aluminiumponton gesehen, wo man die Motoren mittels Winde auf und ab lassen konnte. Damit sie nicht unnötig im Wasser sind wenn sie nicht gebraucht werden.

Diese Bilder stammen aus Auckland/Neuseeland. So ähnlich werde ich mich auch Motorisieren!

Dieses Modell habe ich zuletzt gebaut (November 2010) und ist auch noch nicht ganz fertig. Dabei kann man gut die Räumlichkeiten sehen. Schwimmen tut es auch schon, nur der Tiefgang liegt völlig daneben.


Hier schwimmt mein Modell in Tasmanische Gewässer :-) und viele Grüße von Oscar aus der Mülltonne ;-)
Hausboot Mini
Nun habe ich mir noch ein weiteres Bausboot gezeichnet. Eines was kleiner ist, um damit auch die kleineren Flüsse und Kanäle zu bereisen. Dort wo die Berufsschifffahrt fährt haben die Schleusen meistens eine Breite von 12 Meter. Doch am schönsten sind die kleineren Kanäle und die haben schon mal Schleusenbreiten um die 4-5 Meter. Nicht zu vergessen die Durchfahrtshöhen von Brücken, Tunnel und Stromleitungen.


Bei dem neuem Bausboot sind die Maße ...
Länge = 11,7 Meter , Breite 4,0 Meter und Höhe über Wasser 3,13 Meter bei einem Tiefgang von ca. 30 cm




Dieses Bausboot unterscheidet sich auch darin, das es ca. 50 cm in den Rumpf hineingebaut wird. Dadurch habe ich auch weniger Höhe, welches sich bei Hindernissen positiv auswirkt.


| I m p r e s s u m | B i l d e r g a l e r i e | Z e i c h n u n g e n | T e c h n i k |
| G ä s t e b u c h | W&L auf dem Wasser | F A Q | L i n k s |